Projekt für einen Neubau eines Wohn- und Geschäftshaus im Zentrum von User
Auftraggeberin: Collofunda AG, Zürich
Direktauftrag
Das Projekt wird nicht weiter verfolgt
Hauptnutzfläche: 1626m2
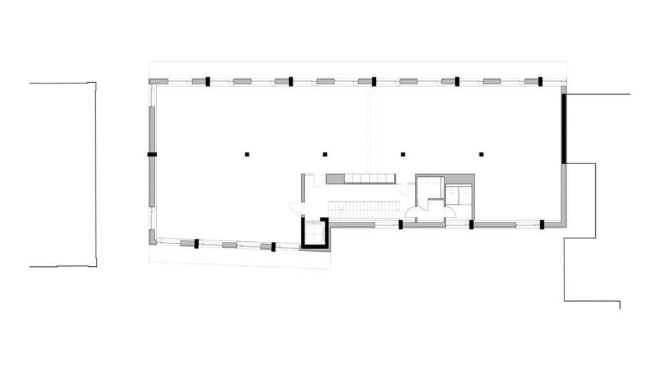
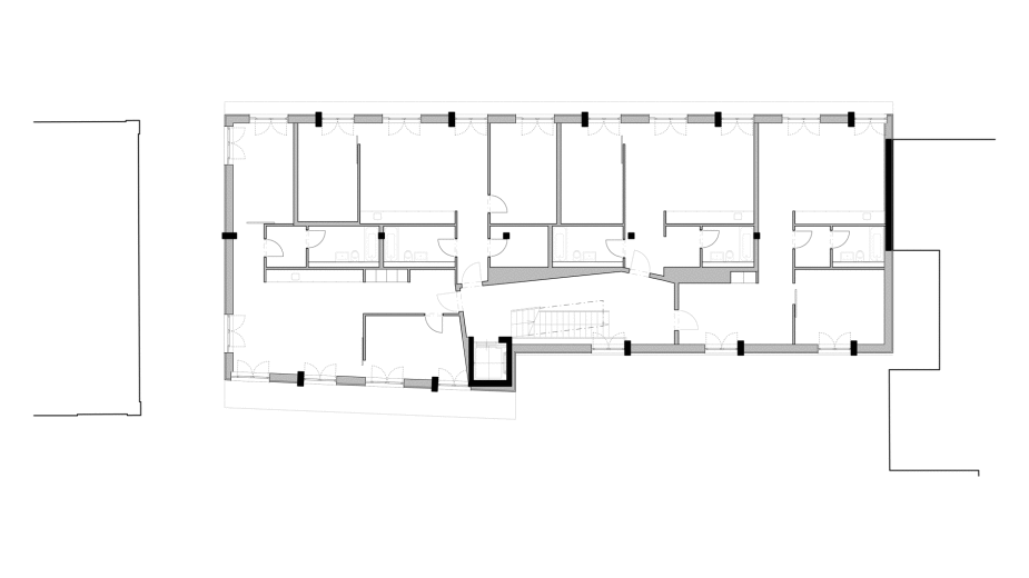
Am Bahnhofslatz von User sollen zwei Altbauten durch ein gemischtes Wohn- und Geschäftshaus ersetzt werden. Die hybride Nutzung auf engstem Raum ist komplex: Im Untergeschoss wird die Tiefgarage der Nachbarüberbauung erweitert, im Erdgeschoss sollen sich Läden und Gastronomie einmieten, darüber zwei Büro- und drei Wohngeschosse. Die Ausnutzung soll maximiert werden.
Der Entwurf reagiert auf die heterogene und im Gewerbebereich noch offene Nutzung mit einer neutralen Struktur, die auf den Geschossen verschieden bespielt werden kann und den Innenräumen einen starken architektonischen Ausdruck verleiht.
Die strukturelle Ordnung wird auch zum Fassadenthema. Der tektonische Ausdruck verweist auf die Konstruktion des Gebäudes und schafft eine formale Verbindung zur klassizistischen, unter Schutz stehenden, Nachbarliegenschaft.






