Machbarkeitsstudie 2002
Auftraggeberin: Hochbauamt der Stadt Zürich
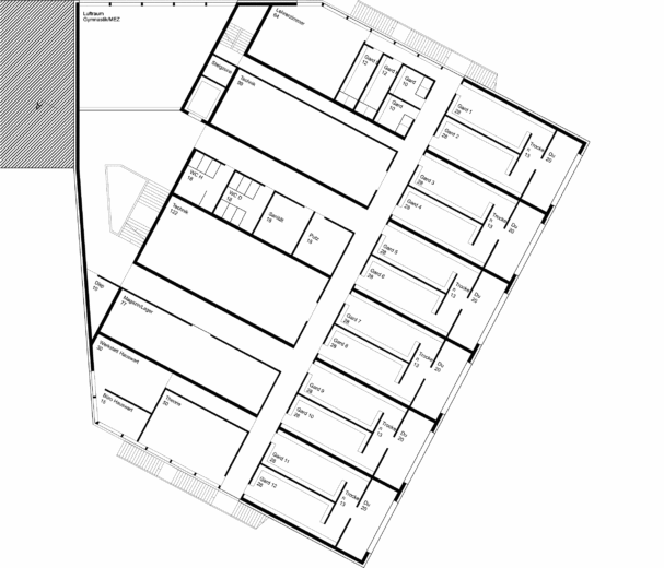
Für das Sport- und das Hochbauamt der Stadt Zürich sollte untersucht werden, ob auf einer engen, geometrisch unregelmässigen Parzelle ein Gebäude mit zwei Dreifachturnhallen realisiert werden kann.
Die Kernidee des Projekts besteht darin, die kleinteiligen Nebenräume (Duschen, Garderoben etc.) in ein Zwischengeschoss, dass durch Fachverträger gebildet wird, zu verlegen. Dadurch können die Turnhallen innerhalb der erlaubten Gebäudehöhen realisiert werden.




