Verdichtungsstudie für ein Industrieareal im Zürcher Kreis 5
Studie 1995
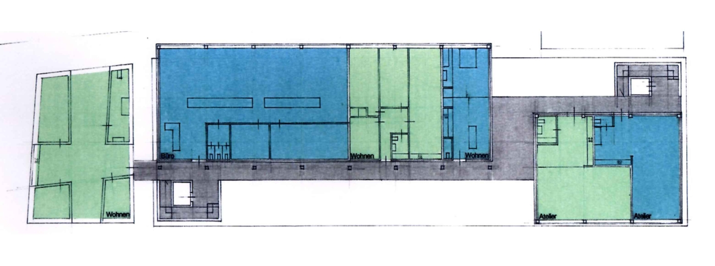
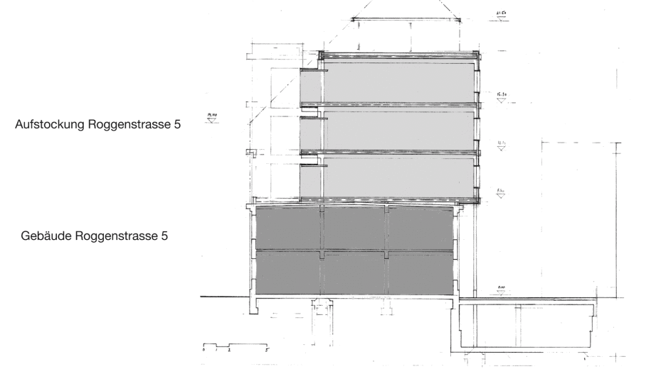
Das zweigeschossige Gebäude an der Roggenstrasse 5 bietet ein grosses Verdichtungspotential. Vorgeschlagen wird, das bestehende Gebäude als Schulhaus für die angrenzende Gewerbeschule weiter zu nutzen. Die darüber liegende Aufstockung soll als Holzskelettbau erstellt werden und kann flexibel mit Büros oder Wohnungen ausgebaut werden. Zusammen mit einem seitlichen Wohnneubau entsteht ein quartiertypisches, vielfältiges Gebäudekonglomerat.





