Wohnüberbauung mit gewerblichen Nutzungen
Bauherrschaft: Genossenschaft Kalkbreite und Stadt Zürich
offener Projektwettbewerb, 2008/09, 7. Platz
In einem vom Verkehr umbrandeten Geviert zwischen der Badenerstrasse, der der Kalkbreitestrasse und der linksufrigen Seebahn wird eine urbane Grossform vorgschlagen. Von Aussen zeigt sich der Entwurf als grossmassstäbliche Figur. Durch eine öffentliche Treppe gelangt man auf das Dach der unter dem Hof liegenden Tramhalle in eine Gegenwelt: einen ruhigen, grünen Dschungel.
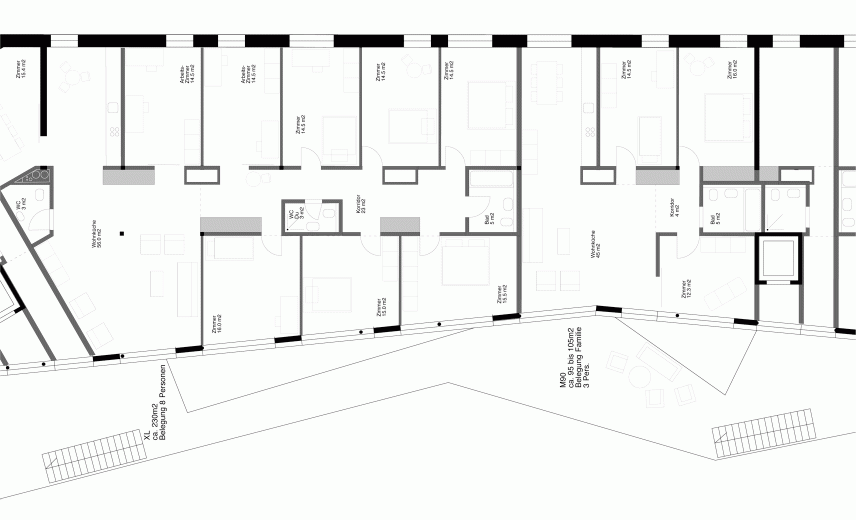
Die Bewohner gelangen entweder über den Hof und rundum laufenden Laubengängen zu ihren Wohnungen. Oder sie benutzen auf Strassenniveau die Hauseingänge und gelangen mit dem Lift direkt zu ihren Wohngeschossen. Die Laubengänge dienen neben ihrer Funktion als Wohnungserschliessungen verschiedenen Zwecken: sie sind eine horizontal und vertikal verknüpfte Begegnungszone, sie dienen als Filter zum halböffentlichen Hof, im Sommer sind sie Brise-Soleil. Zusammen mit den frei unterteilbaren Geschossen ermöglichen sie grösstmögliche Flexibilität und somit Nachhaltigkeit.




