Neubau von 42 Wohnungen in 6926 Montagnola
Arbeitsgemeinschaft mit Ammann Architetti, Verscio/Zürich
Auftraggeberin: Immobiliare Campagnona SA, 6900 Lugano
Studienwettbewerb, 2003/4, 1. Preis
Baubeginn 1. Etappe 2011
Bausumme 31Mio CHF (BKP 1-4)
Volumen 42‘500m3 (SIA 116)
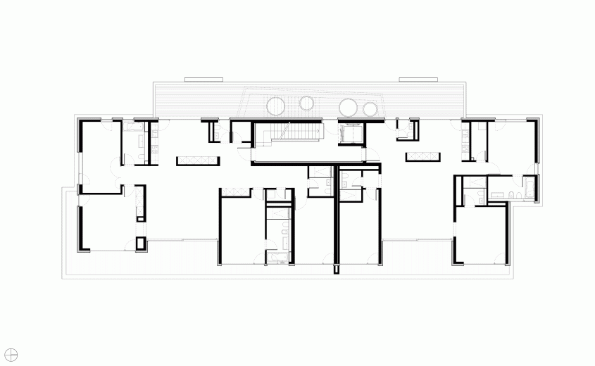
Das unbebaute Grundstück liegt an einem steilen Osthang mit herrlicher Sicht auf den Golf von Lugano. Da das Grundstück nicht erschlossen ist, bildet die Erschliessung einen entscheidenden Aspekt des Entwurfes. Terrassen aus Natursteinmauern sollen das strukturierende Element der Überbauung bilden. Sie stellen einerseits einen Sockel dar, auf denen die Gebäude sitzen, andererseits dienen sie als Wegführung durch die Anlage. Die Tiefgarage folgt dieser Erschliessung und versteckt sich in einem zusammen hängenden Sockel unter den sechs weit gehend identischen Gebäuden. Drei Häuser werden für Stockwerkeigentum gebaut, drei mit leicht komprimierten Grundrissen mit Mietwohnungen.
Innerhalb der Wohnungen betont das umlaufende Fensterband die Horizontale und fasst so die fantastische Aussicht. Der grösste Teil der Wohnungen ist dreiseitig orientiert und erhält so auch möglichst viel Abendsonne. Die Grundrisse werden einerseits durch einen fliessenden Hauptraum bestimmt, anderseits besteht eine klare Unterteilung in einen Tag- und einen strikt privaten Nachtbereich. Es besteht eine grosse Nutzungsflexibilität. Vor allem bei den Stockwerkeigentumswohnungen lässt die Baustruktur auch eine grosse Planungsflexibilität zu.






