Wettbewerb auf Einladung für die Baufelder A, B3 Süd und B4 Süd, 2011
Auftraggeberin: Marazzi Generalunternehmung AG in Zusammenarbeit mit den Wohnbaugenossenschaften GBMZ, Hofgarten und WOGENO sowie der Stiftung für kinderreiche Familien, Zürich
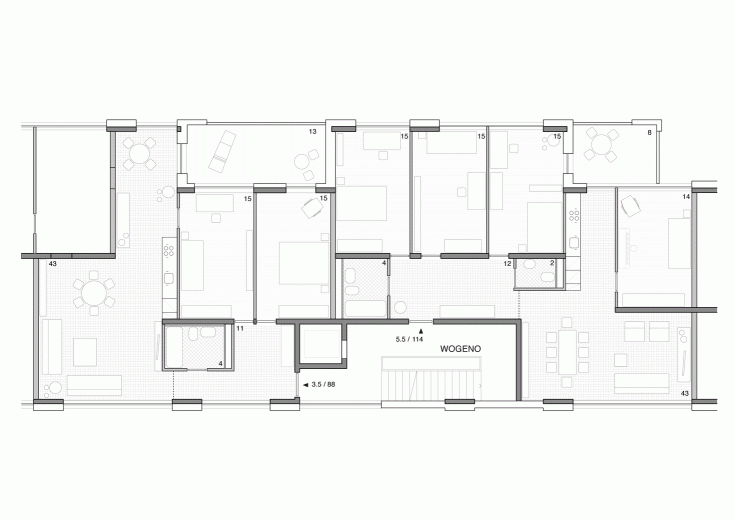
83 Wohnungen und Ateliers (Baufeld A)
Baufeld A: 1. Preis ex aequo, Überarbeitung 2012
Das Areal der ehemaligen Sihl-Papier-Fabrik ist eine der letzten grossen Industriebrachen der Stadt Zürich und soll in den nächsten Jahren in Etappen zu einem dichten Stadtquartier umgebaut werden. Für die drei Baufelder, die für den gemeinnützigen Wohnungsbau reserviert sind, wurde im Winter 2011/12 ein Architektur-Wettbewerb durchgeführt. Auf dem schmalen Baufeld A zwischen der Allmendstrasse und der Sihltalbahn konnte HLS die Konkurrenz ex aequo mit em2n Architekten für sich entscheiden. Nach einer Überarbeitungsrunde haben sich die Genossenschaften für das Projekt von em2n entschieden.
Gefragt waren wirtschaftliche Grundrisse, die eine Antwort auf die schwierige Lärmsituation entlang der Allmendstrasse finden und ein Erdgeschoss, dass zwischen der Strasse, der Bahnhaltestelle und dem Innern des neuen Quartiers zu vermitteln weiss. HLS schlagen ein Gebäude vor, dass sowohl durch seine Kubatur wie auch durch die Materialisierung mit Klinker ein starkes Zeichen am Eingang zu Green City setzt. Die Wohnungen spielen mit der Zweiseitigkeit: Die Wohnräume öffnen sich über Balkone gegen die ruhigere Ostseite – gegen die Abendsonne und die Flanken des Üetlibergs schweift der Blick durch ein grosses Panoramafenster.







