Studienauftrag 2002
Auftraggeber: Allreal, Turintra AG, Stadt Zürich
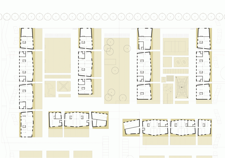
Das Wettbewerbsareal grenzt an einen im Entstehen begriffenen Park mit See, der in der weiteren Peripherie der Stadt Zürich im Rahmen einer grossen Gebietsentwicklung realisiert und zu einem neuen, identitätsstiftenden Ort werden soll.
Unsere vorgeschlagene Anordnung der Gebäude erlaubt es jeder Wohnung, einerseits an der Aussicht über den See hinweg in die Parklandschaft teil zu haben, andererseits wird ihr das ganze Jahr hindurch eine optimale Besonnung ermöglicht.
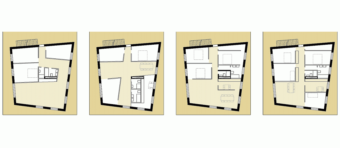
Im Vordergrund stand die Idee „Einfamilienhäuser“ auf einem Stockwerk zu realisieren, dh. Wohnungen zu konzipieren, die im Inneren eine grosse Flexibilität aufweisen und, analog dem Einfamilienhausgarten, umgeben sind von einem grosszügigen, privaten Aussenraum. Bedingt durch das hiesige Klima und den massiven Lärmimmissionen des nahen Flughafens, wurde dieser Aussenraum vollständig verglast. Die so gewonnene Raumschicht kann in jeder Jahreszeit vielfälltig genutzt werden und vergrössert und verknüpft die Wohnung mit der Landschaft.






