Direktauftrag 1996
Adresse: Calandaweg 9/11, 5630 Muri AG
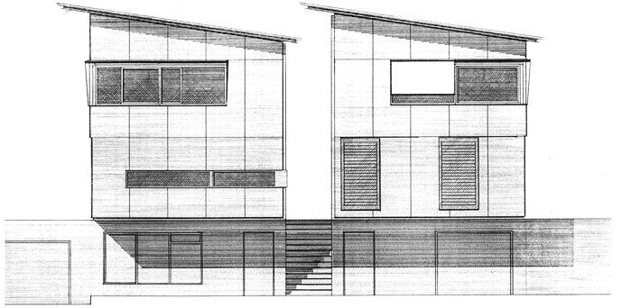
Es ging darum, ein Doppelhaus zu entwerfen, dass beiden Parteien gerecht wird, obwohl die beiden Parzellen von sehr unterschiedlicher Ausrichtung und Qualität sind.
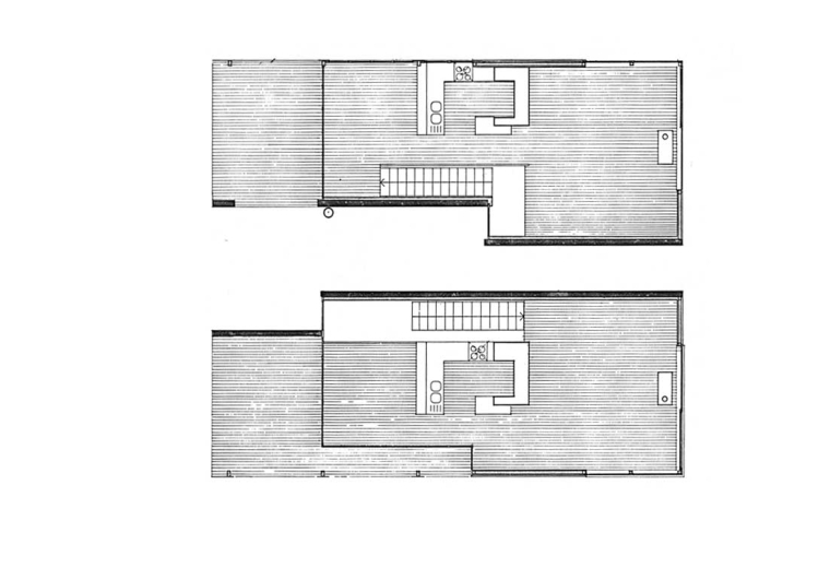
Durch die Gasse zwischen den beiden Hausteilen und den gegen Süden sich öffnenden Pultdächern entstehen spannende Ausssenräume, erlebnisreiche Hauszugänge und eine befriedigende Besonnung auch des nördlichen Hausteils. Der mehrheitlich im Hang liegende Sockel enthält die Kellerräume und Garagen, darüber liegen pavillonartig die beiden Hausteile, die als Holzleichtbauten ausgeführt wurden. In den Erdgeschossen sind die Schlafzimmer angeordnet, die grosszügigen Wohnräume mit Terrassen liegen oben und werden durch eine Küchenskulptur in einen Wohn- und einen Essbereich gegliedert.











